English
Luxus lakás Paulayban

VI.Kerület , Belső-Terézváros

309.000.000 Ft

2.942.857 Ft / m2

3

Szobák

hálószoba

2

Hálószoba

m2

105

Négyzetméter

Luxus lakás Paulayban

VI.Kerület , Belső-Terézváros

309.000.000 Ft

3

Szobák

hálószoba

2

Hálószoba

105

Négyzetméter

Adatok

fürdőszoba
2
Emelet:
3
Négyzetméter ár :
2.942.857 Ft / m2
Lift:
Igen
Kilátás:
Utcai
Lakás állapota:
Felújított
Épület állapota kívül:
Jó állapot
Épület állapota belül:
Jó állapot
Tájolás:
Dél-kelet
Belmagasság:
3 m feletti

Leírás

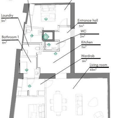
Paulay utca 18-ban frissen elkészült felújított luxus lakás eladó. Nappali 2 háló, 2 fürdő, vendég mosdóval. Okos otthon, padlófűtés, mennyezet-hűtés, hőszivattyúval. Egyedi tervezésű konyha, walk-in gardrób, tapéta ajtók. 3 rétegű ablakok, elektromos árnyékolók.

Felszereltség

Elektromos Fűtés
Hőszivattyús Fűtés
Mennyezet hűtés-fűtés

VI.Kerület

A hatodik kerület a pesti oldal közepén helyezkedik el. A kerület szíve a híres UNESCO világörökségű Andrássy út, amelyet nagykövetségek, díjnyertes múzeumok és luxuscikk áruházak díszítik. A sugárút a nevezetes Hősök terébe torkollik, mely mögött a vadregényes Városliget található. A környéken történő folyamatos beruházások a város művészeti központjának megújulásának adnak teret. A kerületet szórakozási lehetőségeit gazdagítja az Opera, a Budapest Broadway és a Nagymező utca éttermei, koktélbárjai és színházai. Néhány háztömbnyivel arrébb a Gustave Eiffel által tervezett Nyugati vasútállomás emelkedik ki a nyüzsgő, városi környéken.

A
Hangulat

Mindennek a közepén, Budapest szívében

Mire számíthatunk

Kulturális központ, történelmi látványosságok, kortárs művészetek és gasztro élmények tárháza. A város szíve mindig lüktetésben van. Egy tartalmas délután a múzeumokban, egy kellemes, vásárlással egybekötött séta, vagy akár egy izgalmas este az Operában vagy egy színházban, mindig van mit felfedezni.

Mire ne számítsunk

A zöld övezetek és csendes utcák nem a kerület jellegzetességei. A kerület fő utcái és terei a nap összes szakaszában majdhogynem tele vannak, míg a kiesőbb utcákban olykor egy lélek sem jár. Környék és utca válogatja a kerület dinamikáját.

A megadott területnagyság hozzávetőleges értékű, javasoljuk azt leellenőrizni és a helyességükről meggyőződni. Az A1 Ingatlan csoport nem vállal felelősséget a területnagyságok vagy a hirdetésekben szereplő bármely egyéb adat esetleges elírásáért.