English
Elegáns otthon
árcsökkenés

V.Kerület , Belváros

259.000.000 Ft

2.539.216 Ft / m2

4

Szobák

hálószoba

3

Hálószoba

m2

102

Négyzetméter

Elegáns otthon árcsökkenés

V.Kerület , Belváros

259.000.000 Ft

4

Szobák

hálószoba

3

Hálószoba

102

Négyzetméter

Adatok

fürdőszoba
2
Emelet:
1
Négyzetméter ár :
2.539.216 Ft / m2
Lift:
Igen
Kilátás:
Utcai
Lakás állapota:
Luxus
Épület állapota kívül:
Jó állapot
Épület állapota belül:
Jó állapot
Tájolás:
Dél
Belmagasság:
3 m feletti

Leírás

Budapest történelmi belvárosa.

A Parlament, a Bazilika, az Opera, a Margitsziget, bevásárló- és üzleti központok, valamint számos oktatási intézmény gyalogosan is elérhető.

3 perc metróútra.

Klasszikus ház nagyon jó állapotban.
Belmagasság - 3,8 m.
Jól karbantartott lift.
Emelet - 1/3.

Nagyon világos lakás.
Déli fekvésű.
Csendes utca.
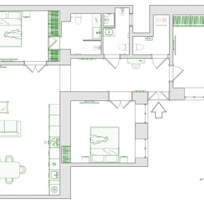
Tökéletes elrendezés:
- tágas előszoba 10 m2.
- luxus nappali 37 m2 (konyha, étkező, ülősarok).
- fő hálószoba 15 m2 gardróbbal és saját fürdőszobával.
- második hálószoba 15 m2 gardróbbal.
- harmadik hálószoba/dolgozószoba/gyerekszoba 13 m2.
- második fürdőszoba.
- vendégfürdőszoba.
- mosókonyha.

Teljes felújítás az összes közmű cseréjével.
Modern európai stílusú design projekt.
Új energiatakarékos fűtés és légkondicionáló.
Kiváló minőségű anyagok, bútorok és háztartási gépek.
Modern tölgyfa parketta.

Felszereltség

Amerikai konyhás
Bútorozott
Előszoba
Központi Fűtés
Légkondicionáló
Tehermentes
Zuhany

V.Kerület

Az ötödik kerület a tökéletes belvárosi élet középpontja. Az üzleti élet és az idegenforgalom nyüzsgő centrumában minden sarkon kiemelt ingatlanokkal, exkluzív gourmet éttermekkel és turista látványosságokkal találhatjuk szembe magunkat. A gondozott utcák és épületek nem csak a látogatókat vonzzák, de a folyamatos új beruházások vonzereje a befektetők számára is kecsegtető.

A
Hangulat

Budapest esszenciája - dinamikus és bájos.

Mire számíthatunk

Az ötödik kerület ingatlan árai a városban a legmagasabbak, azonban a körzet garantáltan kiváló hozamot hoz a befektetők számára. A kerület környékei rendkívüli diverzitásnak adnak teret a pezsgő szórakozóhelyekkel teli utcáktól kezdve a csendes Vizivárosig. Az itt befektetni vágyók fontos, hogy fontolóra vegyék, milyen messze vagy éppen távol szeretnének elhelyezkedni a nyüzsgéstől.

Mire ne számítsunk

Annak ellenére, hogy számos hangulatos parkra lelhetünk, a zavartalan nyugalom és bőséges zöld területek nem a kerület jellegzetességei. Még a legcsendesebb utcákon is megfordulnak a Budapestre látogatók. A járműforgalom megnehezítheti a környéken történő közlekedést, továbbá az ünnepnapokon történő útlezárások a parkolási lehetőségeket csökkenthetik.

A megadott területnagyság hozzávetőleges értékű, javasoljuk azt leellenőrizni és a helyességükről meggyőződni. Az A1 Ingatlan csoport nem vállal felelősséget a területnagyságok vagy a hirdetésekben szereplő bármely egyéb adat esetleges elírásáért.