English
Eladó Balaton-felvidéki kúria Szentbékkállán

Vidék

215.000.000 Ft

749.129 Ft / m2

6

Szobák

hálószoba

5

Hálószoba

m2

287

Négyzetméter

Eladó Balaton-felvidéki kúria Szentbékkállán

Vidék

215.000.000 Ft

6

Szobák

hálószoba

5

Hálószoba

287

Négyzetméter

Adatok

fürdőszoba
2
Emelet:
Kétszintes ház
Négyzetméter ár :
749.129 Ft / m2
Lift:
Nincs
Kilátás:
Kert
Ingatlan állapota:
Jó állapot
Épület állapota kívül:
Felújított
Épület állapota belül:
Felújított
Tájolás:
Kelet
Telekterület:
986 Négyzetméter
Belmagasság:
3 m alatti
Erkély/terasz:
Terasz

Ideális

Rövid Távú Bérlésre

Alapozza meg kényelmesen bevételi forrását egy ingatlankezelő cég bevonásával. Az ingatlanbérbeadási tevékenységünket minden esetben az állapot és elhelyezkedés kínálta lehetőségekre alapozva a lehető legkedvezőbb megtérüléssel végezzük.

Leírás

Hangulatos Balaton-felvidéki kúria eladó ✨

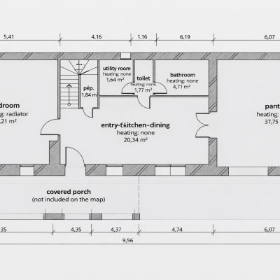
Szentbékkálla szívében, a varázslatos Káli-medence egyik legszebb részén kínálok eladásra egy díjnyertes, egyedi tervezésű otthont.

4 szobás családi ház tágas nappalival, konyhával, étkezővel, 2 fürdőszobával
 Különálló vendégház szaunával – tökéletes pihenéshez vagy kiadásra
6x3 m-es fűtött medence a gondozott, 986 m²-es kertben
 Beálló, pajta, kerti grill – minden adott a kényelmes vidéki élethez

Az ingatlan egész évben lakható (gáz-cirkó fűtés), a Balaton pedig mindössze 15 perc autóval. A környék híres gasztro- és kulturális helyeiről – igazi életérzés, nem csak egy otthon.

Felszereltség

Cirkó Fűtés
Medence
Szauna
A megadott területnagyság hozzávetőleges értékű, javasoljuk azt leellenőrizni és a helyességükről meggyőződni. Az A1 Ingatlan csoport nem vállal felelősséget a területnagyságok vagy a hirdetésekben szereplő bármely egyéb adat esetleges elírásáért.