English
Eladó luxuslakás a Szent István parknál – Art Deco házban, 2 erkéllyel

XIII.Kerület , Újlipótváros

195.000.000 Ft

2.437.500 Ft / m2

3

Szobák

hálószoba

2

Hálószoba

m2

80

Négyzetméter

Eladó luxuslakás a Szent István parknál – Art Deco házban, 2 erkéllyel

XIII.Kerület , Újlipótváros

195.000.000 Ft

3

Szobák

hálószoba

2

Hálószoba

80

Négyzetméter

Adatok

fürdőszoba
2
Emelet:
3
Négyzetméter ár :
2.437.500 Ft / m2
Lift:
Igen
Kilátás:
Utcai
Lakás állapota:
Luxus
Épület állapota kívül:
Jó állapot
Épület állapota belül:
Jó állapot
Tájolás:
Dél
Belmagasság:
3 m feletti
Erkély/terasz:
Erkély - 6 NM

Leírás

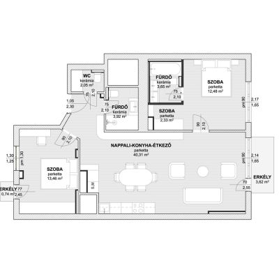
A Szent István park közelében, elegáns art deco házban eladó egy 80 m²-es, luxus minőségben felújított, teljesen bútorozott polgári lakás.
Déli tájolású, tágas nappali amerikai konyhával és étkezővel, 2 hálószoba, 2 fürdőszoba, külön WC és mosóhelyiség tartozik hozzá. Két hangulatos erkély, prémium anyaghasználat, egyedi beépített bútorok, design világítás, klíma és redőny biztosítja a kényelmet.

Felszereltség

Erkély
Központi Fűtés
Légkondicionáló

XIII.Kerület

Nagyon kevés környék mondhatja el magáról Budapesten, hogy mindene megvan: bőséges zöldterület, megfizethető lakások, kerékpár- és kutyabarát övezet, színes nemzetközi közösség, ínyenc gasztro világ és hangulatos éjszakai élet, mindez egy helyen. A környéken kanyargó kerékpárutak elvezetnek egészen a Margitsziget tágas parkjaiból, a Pozsonyi út hangulatos kávézók és butikok tűzdelte során és a Szent István parkon át, egészen az újonnan épült Duna Arénáig.

A
Hangulat

Elbűvölő családias környék, ahol zajlik az élet és sosem unatkozik az ember.

Mire számíthatunk

Egy színes környék tele kávézókkal, boltokkal, bisztrókkal és reggelizőkkel és zöld területtel, ahol a Margitsziget és a belváros közelsége, valamint a dunai kilátás csak hab a tortán.

Mire ne számítsunk

A Duna közelsége és a kellemes parkok mellet nem szabad elfelejteni, hogy a XIII. kerület nagy és mozgalmas, a belvárosi kerületek sorát gazdagítja, ahol szintén zajlik az élet.

A megadott területnagyság hozzávetőleges értékű, javasoljuk azt leellenőrizni és a helyességükről meggyőződni. Az A1 Ingatlan csoport nem vállal felelősséget a területnagyságok vagy a hirdetésekben szereplő bármely egyéb adat esetleges elírásáért.