English
Múzeum körúton eladó két kislakás egyben

VII.Kerület , Belső-Erzsébetváros

280.000

3.182 / m2

4

Szobák

hálószoba

2

Hálószoba

m2

88

Négyzetméter

Múzeum körúton eladó két kislakás egyben

VII.Kerület , Belső-Erzsébetváros

280.000

4

Szobák

hálószoba

2

Hálószoba

88

Négyzetméter

Adatok

fürdőszoba
1
Emelet:
3
Négyzetméter ár :
3.182 / m2
Lift:
Nincs
Kilátás:
Udvari
Lakás állapota:
Jó állapot
Épület állapota kívül:
Jó állapot
Épület állapota belül:
Jó állapot
Tájolás:
Dél-nyugat
Belmagasság:
3 m feletti

Ideális

Hosszú Távú Bérlésre

Alapozza meg kényelmesen bevételi forrását egy ingatlankezelő cég bevonásával. Az ingatlanbérbeadási tevékenységünket minden esetben az állapot és elhelyezkedés kínálta lehetőségekre alapozva a lehető legkedvezőbb megtérüléssel végezzük.

Leírás

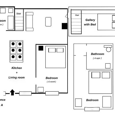
Befektetési lehetőség a belváros szívében – 2 lakássá alakított ingatlan eladó a Múzeum körúton

Cím: Múzeum körút 10., 3. emelet Alapterület: 88 m² Felosztás: 2 különálló lakás Állapot: jó állapotú, jelenleg is folyamatosan kiadva egyetemistáknak, minimum 1 éves szerződéssel 

Ez a 88 négyzetméteres, 3. emeleti ingatlan a Múzeum körút egyik klasszikus épületében található, és két különálló lakássá lett átalakítva. Mindkét egység külön bejárattal, saját konyhával és fürdőszobával rendelkezik, így ideális hosszú távú bérbeadásra.

Jelenleg is megbízható egyetemisták lakják, akik minimum 1 éves szerződéssel bérelnek, és szívesen maradnának tovább is – ez garantálja a folyamatos bevételt és alacsony fluktuációt.

 

Miért jó befektetés?

  • Két lakás egy áráért – duplázott bérbeadási potenciál
  • Stabil hozam – jelenlegi bérlők hosszú távra terveznek
  • Kiváló lokáció – ELTE, Corvinus, BME és Semmelweis egyetemek pár perc sétára
  • Belvárosi értéktartás – a Múzeum körút mindig keresett
  • Alacsony kockázat – jól karbantartott épület, aktív bérleti szerződések
 

Kiknek ajánljuk?

  • Befektetőknek, akik azonnali hozamot keresnek
  • Szülőknek, akik egyetemistájuknak keresnek lakást, miközben a másik egység kiadható
  • Bérbeadóknak, akik stabil, hosszú távú bérlőket preferálnak
 

Ne hagyja ki ezt a ritka lehetőséget a belvárosban – egy ingatlan, két lakás, biztos hozam!

 

Felszereltség

Bútorozott
Dupla Bejárat
Mosógép
Zuhany

VII.Kerület

Az elmúlt évtizedben nagy átalakulásokon ment keresztül a hetedik kerület. A bohém káoszból igazi pulzáló, kortárs kerületté, a társasági élet központjává alakult, telis tele új hullámos kávézókkal és éttermekkel, butik koktélbárokkal és szórakozóhelyekkel, valamint design üzletekkel. A kerület népszerűségét a romkocsmák egyedülálló hangulata és a zsidó kultúra jellegzetességei határozta meg, ami mára kiegészült modern nyugat-európai stílusjegyek. Az viszont kétségtelen, hogy a kerület zamatát a színes Szimpla Kert bohémiája és a zsidó gasztro-kertek - mint a Kőleves és a Mazel Tov - hangulata adja. A szórakozni vágyók számára a legnépszerűbb lokációk a Gozsdu Udvar és a Király utca, de kerület teljes területén belefuthatunk izgalmas találkozási pontokba. Nem titok, hogy a nyüzsgő hetedikben a legnagyobb a népsűrűség, így garantált az energikus városi hangulat.

A
Hangulat

Eklektikus, művészi, a budapesti szórakozás origója, mely városrész messze a legnépszerűbb a turisták számára.

Mire számíthatunk

Zene, szórakozás, éttermek, bárok, butikok és design boltok sora a kerület összes szegletében. Szinte garantált, hogy a hét bármely napján találunk valamilyen izgalmas programot. A hetedik kánaán azok számára, akik a legtöbbet akarják kihozni az igazi Budapesti éjszakai életből.

Mire ne számítsunk

A romkocsma kult és a dzsentrifikáció kiszorította az autentikusabb alternatív és underground helyeket a kerületből a VIII. vagy IX. kerületbe. A kerület folyamatos nyüzsgésben van az idelátogató túristák és szórakozni vágyók által, így nem a legideálisabb választás a csendes és nyugodt környékre vágyódó családok számára.

A megadott területnagyság hozzávetőleges értékű, javasoljuk azt leellenőrizni és a helyességükről meggyőződni. Az A1 Ingatlan csoport nem vállal felelősséget a területnagyságok vagy a hirdetésekben szereplő bármely egyéb adat esetleges elírásáért.